Căn hộ dịch vụ thoải mái - nơi bạn có thể
dành thời gian khi đến với Thành phố Hải Phòng, Việt Nam.
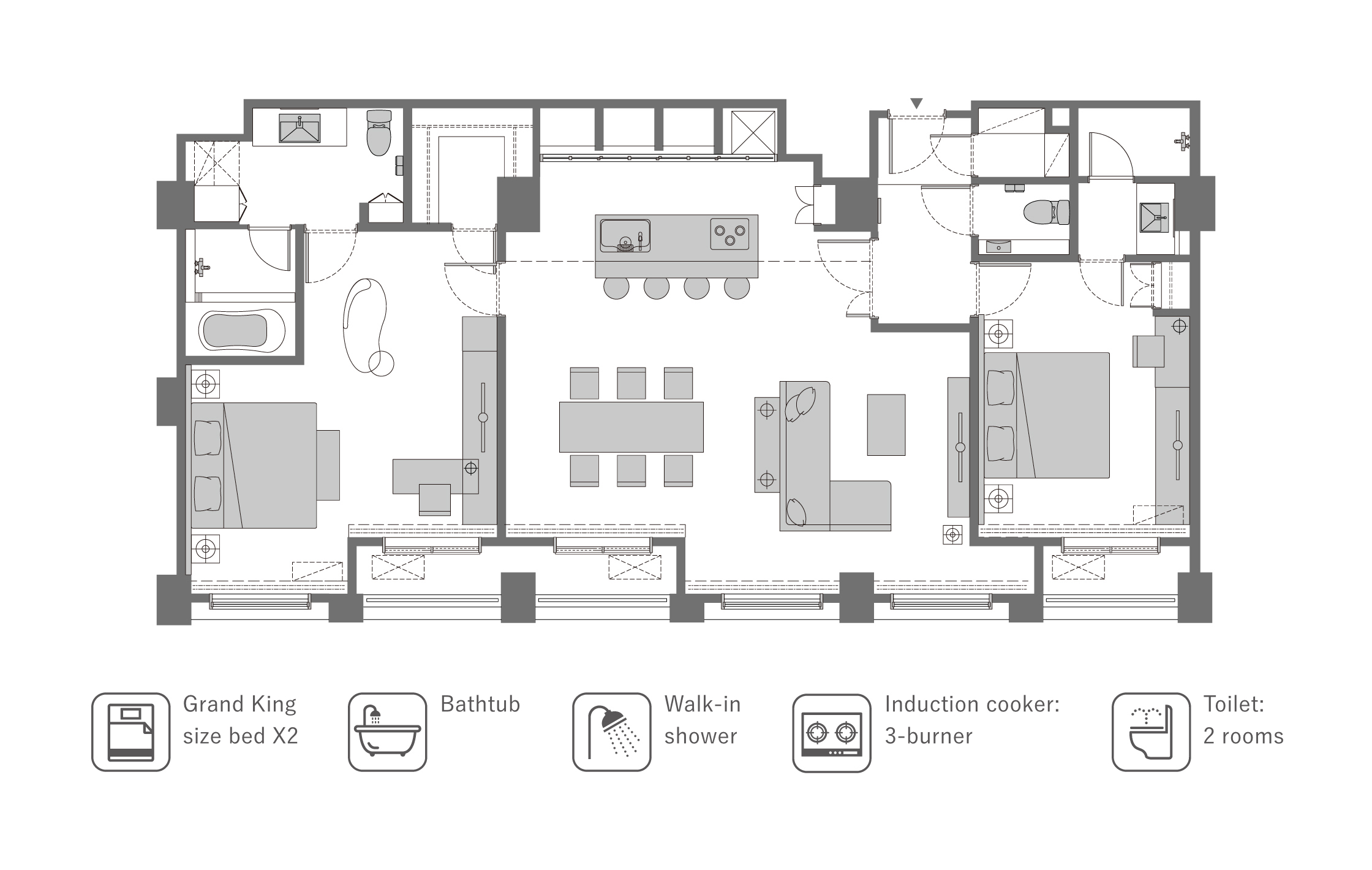
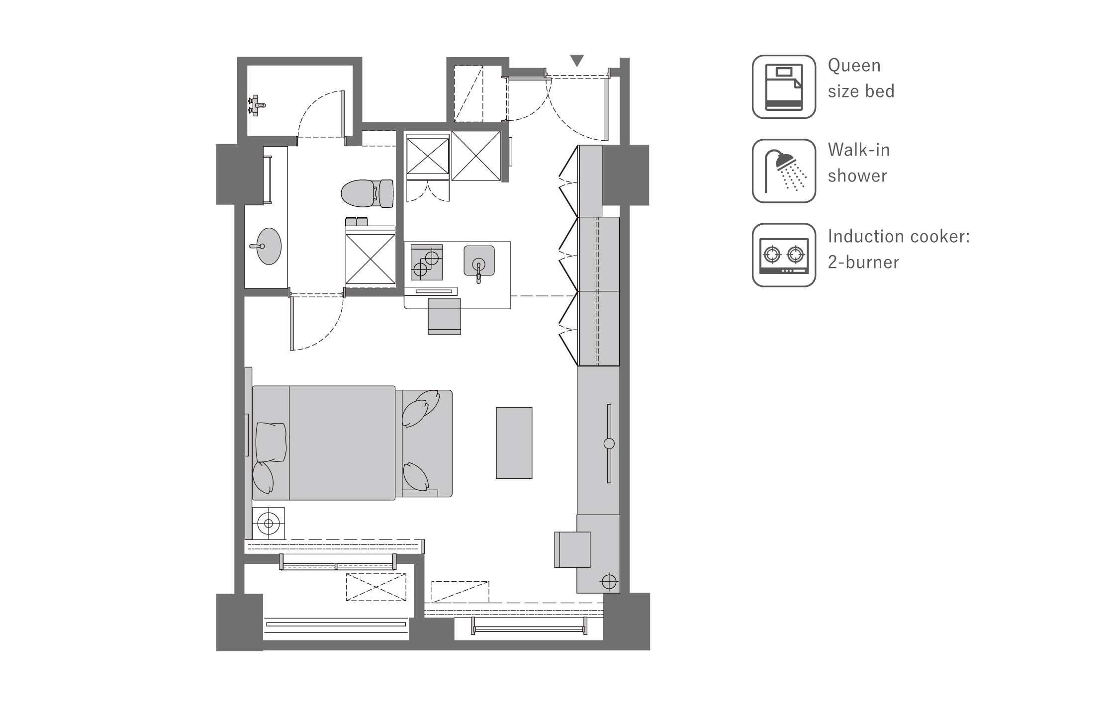
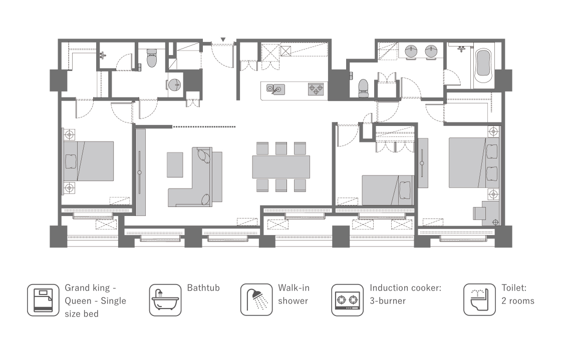
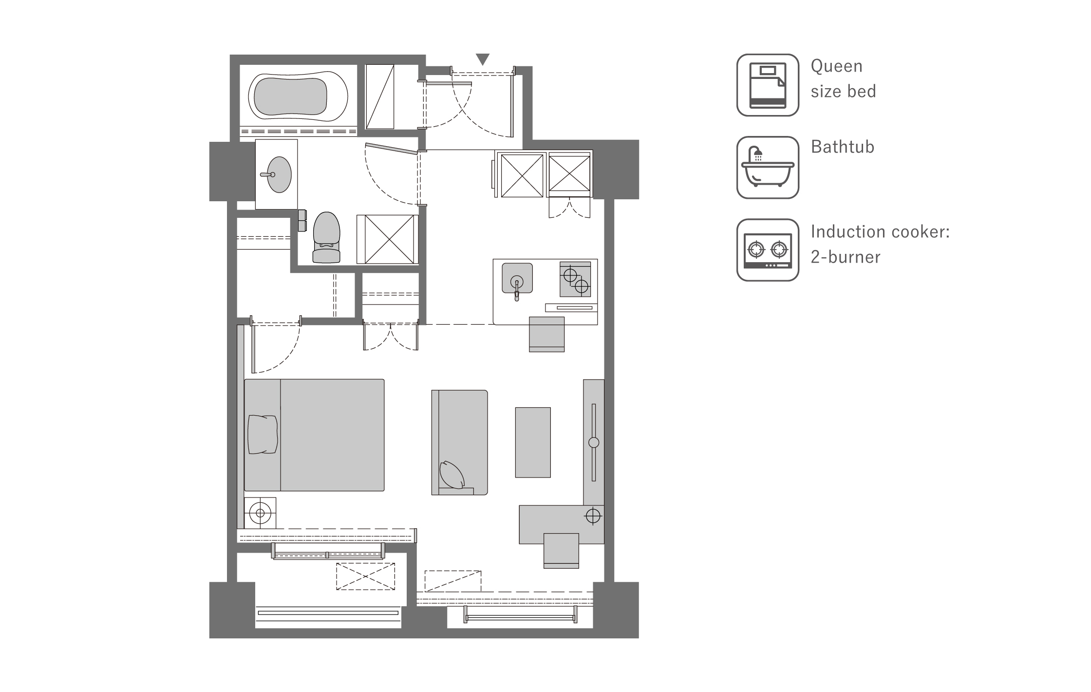
Lựa chọn cách thiết kế có chức năng tuyệt vời phù hợp với lối sống của bạn.
Các thiết kế đáp ứng nhiều nhu cầu khác nhau, từ độc thân đến gia đình.
Nhiều tiện ích như: phòng tắm công cộng kiểu Nhật,
bể bơi ngoài trời, phòng tập thể dục, nhà hàng, sảnh khách.
Gần sân bay quốc tế Cát Bi và lối vào đường cao tốc.
Đây là khu vực tốt, thuận tiện di chuyển đến các Khu công nghiệp và dễ dàng tiếp cận Phố Văn Cao với nhiều nhà hàng và cửa hàng Nhật Bản đa dạng.
Gần có bệnh viện quốc tế và trường học quốc tế.
Địa điểm này được kỳ vọng sẽ là trung tâm chiến lược mới của thành phố.

Hải Phòng là thành phố lớn thứ ba của Việt Nam với diện tích 1.503 km2 và dân số khoảng 1,7 triệu người.
Là thành phố trung tâm, trực thuộc Chính phủ cũng như TP.Hà Nội và TP.Hồ Chí Minh.
Với vị trí cách Sân bay Quốc tế Nội Bài (Thành phố Hà Nội) khoảng 2 giờ đi xe,
thành phố Hải Phòng đã khẳng định được vị thế quan trọng về thương mại trong nước và quốc tế là thành phố cảng lớn nhất ở miền Bắc Việt Nam.
Tại Hải Phòng có Sân bay Quốc tế Cát Bi thường xuyên đón các chuyến bay đến và đi từ Thành phố Hồ Chí Minh và Đà Nẵng, đồng thời có kết nối thuận tiện đến các thành phố khác.